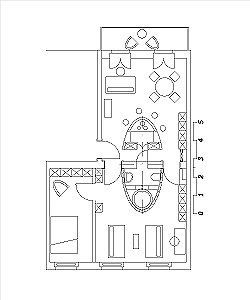
Wohnung an der Spree

Neuordnung Grundriss,
Einbauküche und Bad
in Schiffsform mit
Glasbausteinen